

2025中国工博会开展倒计时8天!
30万平方米展览面积
9大专业展区纵横交错
3000家优质展商同台亮相
如何高效规划观展路线?
如何精准定位目标展商?

09/23-09/27
CIIF 2025
一键收藏
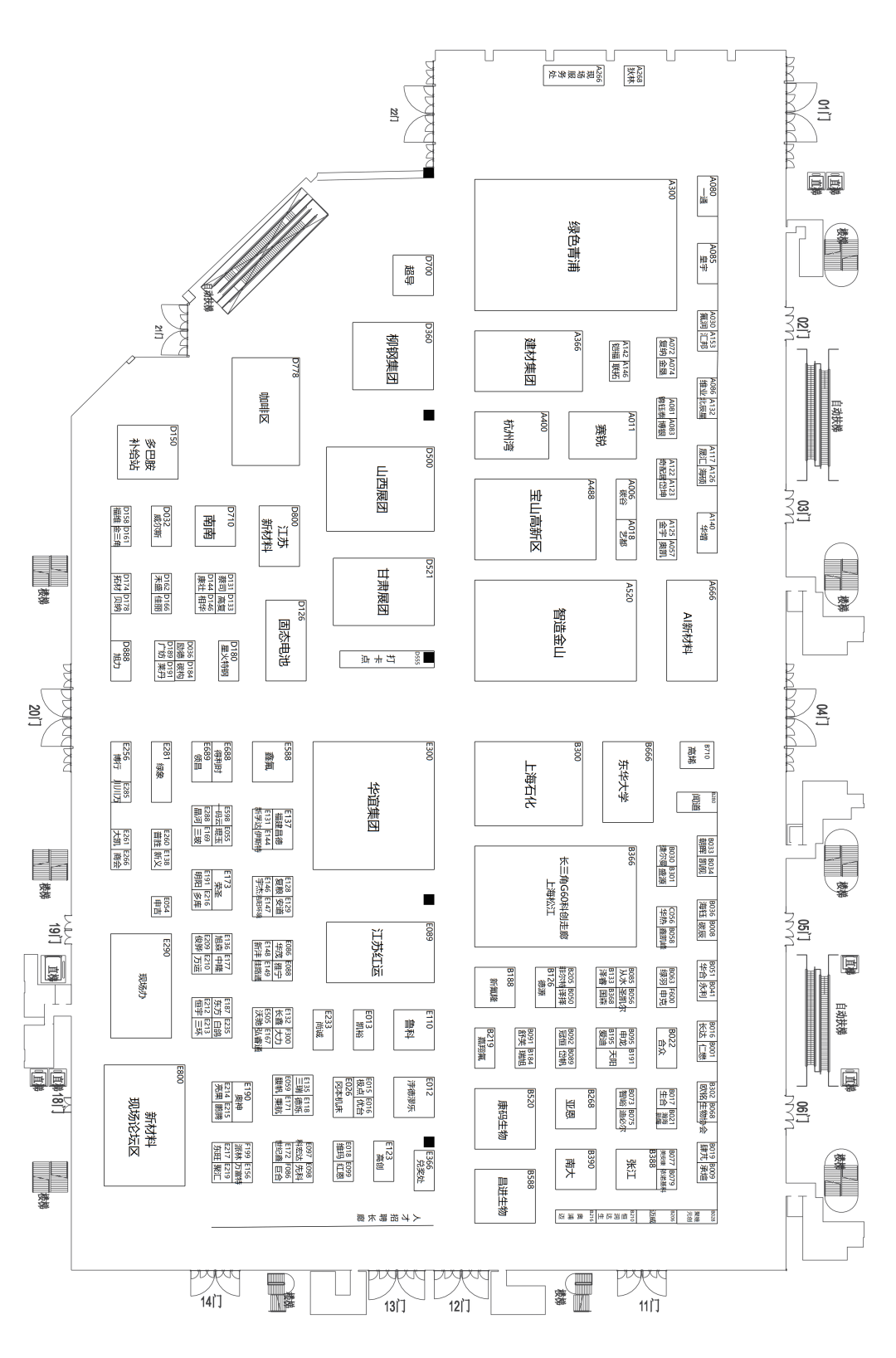
展 位 图
BOOTH LAYOUT
展位图更新至2025年9月15日,具体以现场发布为准
👇 扫码加微信看高清展位图 👇


请将手机横置查看展位图
1.1H
智慧能源展
工业自动化展

2.1H
数控机床与
金属加工展

3H
数控机床与
金属加工展

4.1H
数控机床与
金属加工展

5.1H
工业自动化展

6.1H
工业自动化展

7.1H
机器人展

8.1H
机器人展

5.2H
新一代信息技术与应用展
智行未来展
科技创新展

6.2H
绿色低碳展
科技创新展

7.2H
新材料产业展

参展详情联系:

