
2025中国工博会
30万平方米展览面积
9大专业展区纵横交错
3000家优质展商同台亮相
如何高效规划观展路线?
如何精准定位目标展商?

09/23-09/27
CIIF 2025
一键收藏
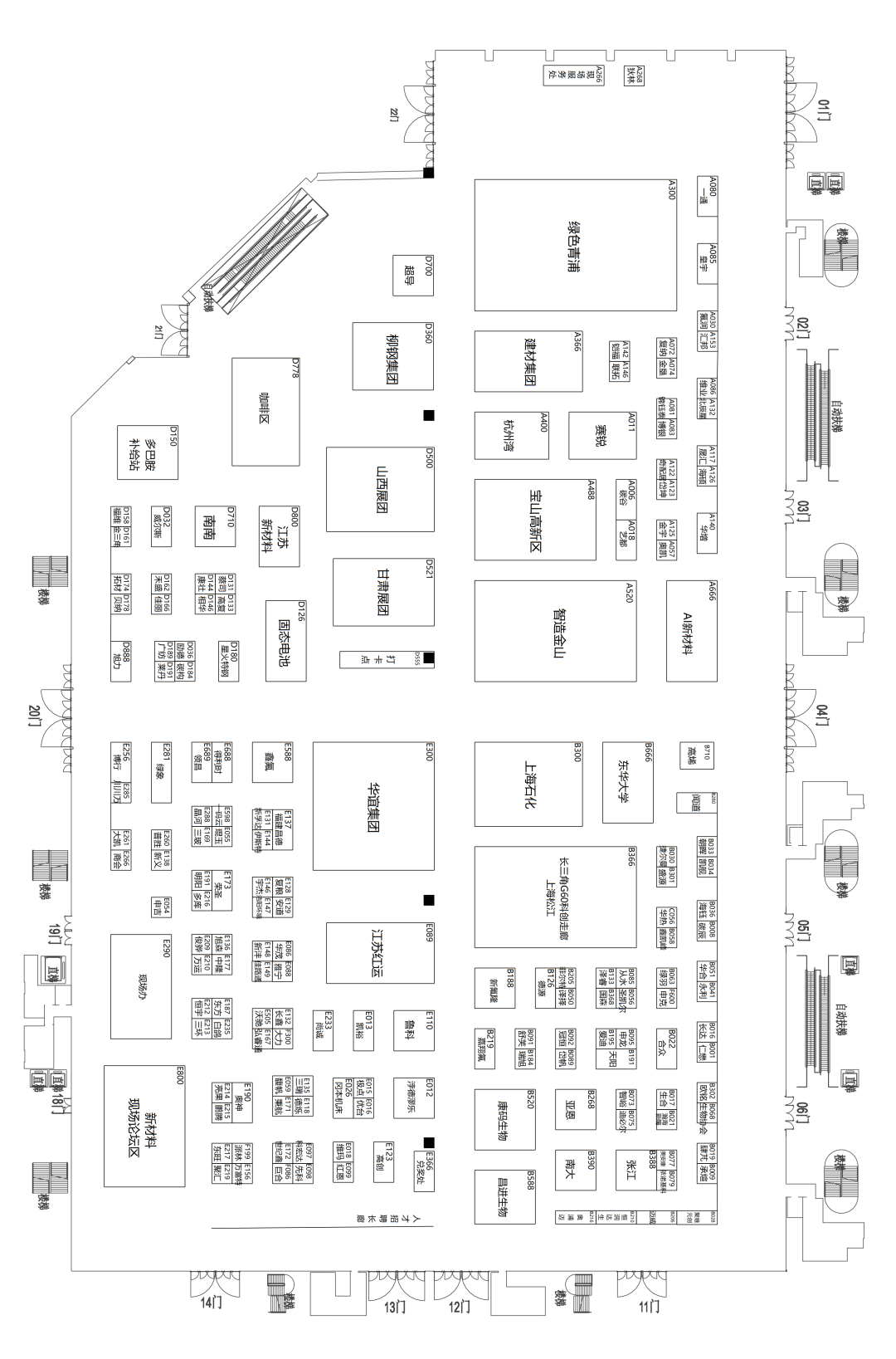
展 位 图
BOOTH LAYOUT
展位图更新至2025年9月15日,具体以现场发布为准
👇 扫码查看高清展位图 👇

https://static.ciif-expo.com/annex/2025-09-15/075314/2020915V2.pdf

请将手机横置查看展位图
1.1H
智慧能源展
工业自动化展

2.1H
数控机床与
金属加工展

3H
数控机床与
金属加工展

4.1H
数控机床与
金属加工展

5.1H
工业自动化展

6.1H
工业自动化展

7.1H
机器人展

8.1H
机器人展

5.2H
新一代信息技术与应用展
智行未来展
科技创新展

6.2H
绿色低碳展
科技创新展

7.2H
新材料产业展

免责声明:本宣传文案所涉数据、图片、视频等资料部分来源于网络,转载目的在于传递更多信息,内容仅供参考,准确内容以展会官网发布为准。如涉及侵权,请联系删除。
欢迎大家关注公众号“祺展云”,每日获取更多会展行业资讯。资料整理不易,如需转载,请联系工作人员转载注明出处。
商务合作可微信扫码联系客服人员:

往期推荐
天津梅江会展中心/天津龙顺文体会展中心/国家会展中心(天津)展会排期2025年8-9月展会排期
2025年江苏省扬州国际展览中心/中国医药城会展中心(泰州)/常熟国际展览中心/淮安国际博览中心展会活动预告
上海新国际博览中心/上海世博展览馆/张江科学会堂/上海世博中心2025年9月会展计划
